Bisnis Bakso Malang dengan kualitas rasa dan isiannya sudah menjelma menjadi merek kuliner penting di Indonesia. Semua pelanggan mengenalnya, dari namanya saja sudah terbayang satu mangkok lengkap isian dan gurihnya kuah kaldu. Dari konsep jajanan kaki lima sampai dengan skala food court punya pasar tersendiri. Tergantung dari anda sendiri yang ingin mencobanya tanpa ada keraguan untuk memulainya. Memang bisnis bakso cukup banyak konsepnya, tetapi bakso malang lebih komplit isiannya. Ada pentol, mie kuning, sayur, pangsit, dan lainnya. Jadi, konsumen sudah mengetahui betapa lezatnya kuliner ini dengan harga yang sangat terjangkau. Melihat banyaknya rekan di luar sana yang ingin mengadu nasib di bisnis bakso malang dengan perbedaan dengan jenis bakso lainnya maka saya mencoba menulis artikel di blog segeratravelingguys.blogspot.com ini. Semoga tulisan saya ini dapat menambah wawasan untuk rekan pemula sebagai petunjuk. 1. Latar Belakang Bisnis Bakso Malang. Salah satu jenis kulin...
Untuk memilih contoh disain lay out sketsa denah saat bisnis praktek dokter klinik kulit kecantikan skin care khusus pemula memang harus banyak dibutuhkan supaya tidak terjadi kesalahan dan penyesalan di kemudian haru. Rencana untuk membuka bisnis tentu berbagai aspek harus diteliti sehingga tempat sebagai lokasi untuk menciptakan nilai ekonomi lebih baik saat profesional pekerjaan anda begitu dihargai oleh pengguna jasa anda dari berbagai kalangan. Sharing dari berbagai rekan yang mempunyai pengetahuan cukup tentu sangat dibutuhkan apalagi mampu menjawab semua keingintahuan anda beberapa contoh lay out yang populer bahkan terbaik untuk budget tertentu akan memberikan sebuah pilihan rencana dimana bisnis ini segera untuk dimulai dan tempat praktek harus di tata dengan baik supaya kenyamanan bekerja dan pasien yang datang menjadi terkejut dengan keindahan yang telah anda siapkan.
Untuk tulisan kali ini rasanya saya ingin merangkum beberapa contoh lay out dan aplikasi dari berbagai pendapat para ahli yang teranalisa dengan baik sehingga menjadi topik konten yang sangat berharga bagi anda pemula di tahun ini akan memulai bisnis yang begitu menjanjikan nilai ekonomi yang sangat tinggi. Rekomendasi ini tentu saja dikembalikan lagi kepada anda seorang investor atau owner yang ingin membuat praktek dokter kulit kecantikan skin care di tempat tertentu dengan pesona yang tidak akan pernah anda lupakan. Berikut beberapa penjelasannya:
![]() |
| credit: floor-plan1.blogspot.com |
Contoh lay out in tergambar ruang tunggu pasien terfokus di tengah di mana pasien diarahkan langsung ke pusat bisnis belangsung. Dari pintu masuk tentu saja dari Product Booth sebagai display penting untuk produk yang akan anda gunakan berbagai treatement yang akan disediakan. Disambut oleh front desk sebagai pusat pendaftaran dan setiap pasien tentu akan memasuki area ini untuk keperluan masing-masing. Memang untuk beberapa ruangan terlihat ada rencana beberapa project yang mungkin saja di masa berikutnya akan melakukan kerjasama [sesuaikan dengan kebutuhan nanti] dengan berbagai kolega yang mempunyai keahlian setidaknya anda sudah memulai untuk facial care treatment dan ruangan konsultasi sebagai langkah awal. Nah, disini hal yang sangat penting diperhatikan di mana pasien langsung di arahkan di area ruang tunggu di tengah supaya langsung melihat apa saja treatment yang ada melihat display yang akan disediakan tentu akan memberikan aura positif untuk segera datang lagi dikemudian hari dengan disain yang sesuai dengan konsep seorang investor atau owner. Untuk lay out ini sangat cocok anda yang mempunyai area tidak begitu luas satu lantai dan dibagai beberapa ruangan yang akan memberikan service dan layanan yang segera pasien butuhkan.
Baca juga:
Baca juga:
![]() |
| credit: crismatec.com |
Untuk contoh rencana lay out untuk bisnis praktek dokter klinik kecantikan skin care lainnya sangat sederhana sekali. Ruangan praktek dokter dapat terbentuk dua kamar dan ruangan untuk tindakan ada juga dua jika kedua dokter ada pasien secara bersamaan. Memang untuk aplikasi ini sangat minimalis sekali tidak perlu banyak ruangan lainnya sehingga dapat menghemat budget untuk building dan renovasi lainnya. Untuk front dest terletak berdekatan dengan ruang tunggu pasien dan pastinya memberikan pesona tersendiri. Saat pasien datang langsung diarahkan ke ruang tunggu dan petugas dari front desk akan mendatangi setelah mereka duduk. Pemisah sebenarnya tidak berupa dinding sebaiknya kaca atau partisi yang bisa terlihat langsung supaya pasien dapat ditangani segera tanpa menunggu lama. Disinilah akan terlihat keunikan dari ruangan praktek yang akan menjadi tempat bisnis yang anda banggakan nanti.
![]() |
| credit: pinterest.com/pin/305189312221712526/ |
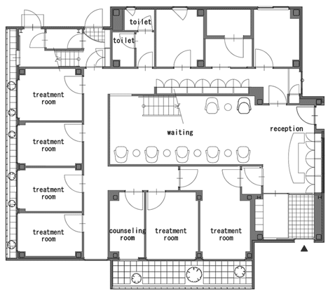
Contoh lay out atau denah ruangan praktek dokter kecantikan kulit skin care lainnya adalah seperti sketsa diatas. Ada beberapa ruangan treatment yang terlihat dan diperuntukan untuk berbagai jenis paket kecantikan yang akan ditawarkan pada pasien. Bahkan ruangan tersebut dapat juga sebagai tempat dokter atau dapat difungsikan juga pada counseling room. Rencana pembuatan ruangan ini pastinya dapat disesuaikan dengan perkembangannya. Jika anda sudah mempunyai freelance beberapa paket tindakan dari rekan sejawat dapat juga mengadopsi rencana ini. Di mulai dari pintu masuk pasien langsung bertemu dengan front desk atau resepsionis yang akan melakukan proses pendaftaran. Saat itu juga akan diarahkan di ruangan tunggu yang terletak di tengah praktek dokter. Tentu saja cara seperti ini petugas mudah mengarahkan dan memberikan suasana homi saat disain terbaik untuk semua.
Baca juga:
Setelah beberapa contoh lay out yang dijelaskan ini tentu anda sudah mulai memahami pilihan terbaik yang akan dilaksanakan. Pastinya disesuaikan dengan budget anggaran dan kesempatan saat klinik ini akan berjalanan pada mulanya. Jangan sampai terburu-buru untuk memmilih di nomer berapa, anda dapat sesuaikan bahkan skesta gabungan mengambil bentuk seperti apa yang paling mendekati. Memang masih banyak beberapa sketsa lainnya tetapi menurut kami untuk sebagai pemula pilihan ini terbaik dan layak untuk dipertimbangkan. Karena tidak semua sketsa lay out sesuai dengan kondisi sekarang tetapi anda bisa melihat seperti ini lah bentuk yang akan anda hadapi dimana bisnis ini akan anda jalani sesuai dengan kondisi keuangan hingga treatment yang akan disediakan kepada pasien nanti.



Komentar
Posting Komentar
Yuk, sharing komentar